MÔ TẢ CHI TIẾT CĂN HỘ C2.1801 – THE HABITAT BÌNH DƯƠNG
-
THÔNG TIN CĂN HỘ
• Mã căn: C2.1801
• Tòa: C2
• Tầng: 18
• Loại: 2 phòng ngủ (2PN)
• Hướng: Đông Nam (South East)
• Diện tích tim tường: 72.8 m²
• Diện tích thông thủy: ước tính 67–68 m²
-
GIÁ GỐC & THÔNG TIN TÀI CHÍNH
(Từ bảng giá bạn cung cấp)
• Giá bán trước thuế (Ex VAT): 3.720.674.960 VND
• VAT: 370.648.306 VND
• Phí bảo trì (2%): 74.413.499 VND
➡️ GIÁ TỔNG GỐC (ĐÃ GỒM VAT + BẢO TRÌ):
4.165.736.765 VND
-
TÍNH CHIẾT KHẤU
Căn 72.8 m² → KHÔNG có CK nội thất (chỉ với căn > 70 m² tim tường mới được, nhưng căn này 72.8 → ĐƯỢC CK nội thất).
➡️ Căn này > 70 m² tim tường → CÓ CK nội thất 3%
Tổng CK = 3% + 1% + 3% = 7%
• 7% × 3.720.674.960 = 260.447.247,2 VND
-
GIÁ TỐT NHẤT THEO TỪNG PHƯƠNG THỨC THANH TOÁN
PTTT1 – Thanh toán chuẩn (–28.000.000)
Giá sau CK:
3.720.674.960
– 260.447.247,2
– 28.000.000
= 3.432.227.712,8 VND
-
VAT + bảo trì
= 3.432.227.712,8 -
370.648.306
-
74.413.499
→ 3.877.289.517,8 VND
➡️ GIÁ CUỐI PTTT1: 3.877.289.517,8 VND
PTTT2 – Thanh toán rút ngắn (–50.000.000)
3.720.674.960
– 260.447.247,2
– 50.000.000
= 3.410.227.712,8 VND
-
VAT + bảo trì
= 3.855.289.517,8 VND
➡️ GIÁ CUỐI PTTT2: 3.855.289.517,8 VND
PTTT3 – Thanh toán nhanh (–2%)
2% × 3.720.674.960 = 74.413.499,2 VND
Tổng CK = 260.447.247,2 + 74.413.499,2
= 334.860.746,4 VND
Giá sau CK:
3.720.674.960 – 334.860.746,4
= 3.385.814.213,6 VND
-
VAT + bảo trì
= 3.385.814.213,6 -
370.648.306
-
74.413.499
= 3.830.875. + ? (tính lại)
Tính chính xác:
3.385.814.213,6
-
370.648.306
= 3.756.462.519,6 -
74.413.499
= 3.830.876.018,6 VND
➡️ GIÁ CUỐI PTTT3: 3.830.876.018,6 VND
→ RẺ NHẤT
PTTT4 – Thanh toán nhanh nhất (–78.000.000)
3.720.674.960
– 260.447.247,2
– 78.000.000
= 3.382.227.712,8 VND
-
VAT + bảo trì
= 3.827.289.517,8 VND
➡️ GIÁ CUỐI PTTT4: 3.827.289.517,8 VND
TÓM TẮT GIÁ CUỐI
| PTTT | GIÁ CUỐI (VND) |
|---|---|
| PTTT1 | 3.877.289.517,8 |
| PTTT2 | 3.855.289.517,8 |
| PTTT3 – RẺ NHẤT | 3.830.876.018,6 |
| PTTT4 | 3.827.289.517,8 |
-
NHẬN ĐỊNH GIÁ TRỊ CĂN HỘ
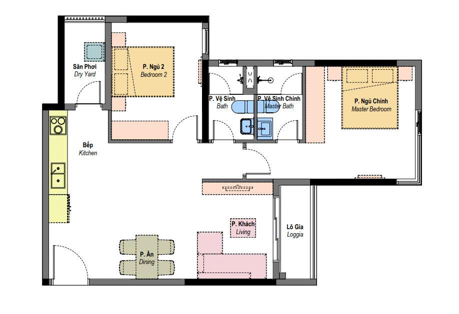
• Căn 2PN vùng diện tích rộng (72.8 m²) — layout thoáng, phòng khách rộng
• Hướng Đông Nam cực mát, phong thủy tốt
• Tầng 18: view cao, thoáng, sạch
• Block C2 có vị trí đẹp, giữa dự án, kết nối tốt tiện ích
• Có CK nội thất thêm 3% → tổng chiết khấu lên đến 7%, rất hiếm
• Giá sau chiết khấu thuộc nhóm tốt nhất phân khúc căn rộng của dự án
-
LIÊN HỆ PHÒNG KINH DOANH
CÔNG TY TNHH PHÁT TRIỂN VSIP – SEMBCORP GATEWAY
Địa chỉ: Số 8, Đại Lộ Hữu Nghị, VSIP 1, Thành phố Thuận An, Bình Dương
Hotline tư vấn nhanh: 0949.600.555
Phone/Fax: 028.3888.3379
Website: https://thehabitatvsip.vn/




















